Buildings
From Culture.si
330 images in buildings.
-
Klub Menza pri koritu in Metelkova mesto Autonomous Cultural Zone, with the Asylum Studio balcony upstairs.
-
Since 1998 the renovated Škratelj Homestead houses a permanent exhibition dedicated to Ida Kravanja who was born in the house. Under her stage name Ita Rina she attained international film star status in the late 1920s.
-
Ministry of Culture, 2009
-
The exhibition space known as Kamera in Kino Šiška is most often used for exhibitions and lectures, 2017
-
The TR3 skyscraper (on the right) on the Republic Square, 2008
-
The TR3 skyscraper next to the Cankarjev dom, Cultural and Congress Centre was designed by architect Edvard Ravnikar in the 60s and constructed in the 70s.
-
Interior of Rotunda of Saint John the Baptist in Muta, 2019.
-
Exterior of Sergej Mašera Maritime Museum, Piran, 2020.
-
Exterior of Rotunda of Saint John the Baptist in Muta, 2019.
-
Exterior of Sergej Mašera Maritime Museum, Piran, 2020.
-
Exterior of Velenje Culture House, 2019.
-
Exterior of Church of St Pancras, Stari trg near Slovenj Gradec, 2019.
-
Castle Pukstein's ruins near Bukovje Manor House, 2019.
-
Organ, Church of St Pancras, Stari trg near Slovenj Gradec, 2019.
-
Interior of Church of St Pancras, Stari trg near Slovenj Gradec, 2019.
-
Interior of Church of St Pancras, Stari trg near Slovenj Gradec, 2019.
-
Interior of Church of St Pancras, Stari trg near Slovenj Gradec, 2019.
-
Exterior of Church of St Pancras, Stari trg near Slovenj Gradec, 2019.
-
Lokev Culture House, 2020.
-
Military room with accommodation, Bukovje Manor House, 2019.
-
Altar, Church of St Pancras, Stari trg near Slovenj Gradec, 2019.
-
Interior of Church of St Pancras, Stari trg near Slovenj Gradec, 2019.
-
Ceiling, Rotunda of Saint John the Baptist in Muta, 2019.
-
Exterior of Krpanov dom Pivka, 2020.
-
Ice Chamber, Bukovje Manor House, 2019.
-
Entrance to Maribor Regional Museum, 2020.
-
Exterior of Maribor Regional Museum, 2020.
-
Pečarič Gallery, 2020.
-
Interior of Church of St Pancras, Stari trg near Slovenj Gradec, 2019.
-
Arch ceiling, Church of St Pancras, Stari trg near Slovenj Gradec, 2019.
-
Birthplace of Hugo Wolf in Slovenj Gradec, facade detail, 2019.
-
Town Hall, Postojna, 2020.
-
Exterior of Krpanov dom Pivka, 2020.
-
Exterior of Church of St Pancras, Stari trg near Slovenj Gradec, 2019.
-
Exterior of Church of St Pancras, Stari trg near Slovenj Gradec, 2019.
-
Interior of Church of St Pancras, Stari trg near Slovenj Gradec, 2019.
-
Exterior of Bukovje Manor House, 2019.
-
Town Hall, Pivka, 2020.
-
Entrance to Monfort Exhibition Space, 2020.
-
Town Hall, Pivka, 2020.
-
Exterior of Krpanov dom Pivka, 2020.
-
Birthplace of Hugo Wolf in Slovenj Gradec, 2019.
-
Exterior of Koroška Central Library Dr France Sušnik, Ravne na Koroškem, 2019.
-
Altar, Rotunda of Saint John the Baptist in Muta, 2019.
-
The Embassy of the Republic of Slovenia in Prague located at the Pod Hradbami 15, Praha 6, one of the most prestigious municipal districts of Prague where more than 60 diplomatic missions take place.
-
A monumental Church of the Most Sacred Heart of Our Lord, a unique modern church architecture was designed by Slovene architect Jože Plečnik for the Vinohrady district of Prague 1929–1932.
-
The Czech President at the time, Tomáš Masaryk, appointed Slovene architect Jože Plečnik chief architect for the 1920s renovation of the Prague Castle. Recently the Hradčany south gardens have been newly restored according to Plečnik's plans.
-
The City Art Gallery Ljubljana is one of the central spaces for the presentation of exhibition projects in the field of contemporary art.
-
Panoramic view of the National Museum of Contemporary History housed in the Cekin Mansion, 2013.
-
The main entrance to the Slovenian Computer History Museum in Ljubljana.
-
National Gallery of Slovenia, view of the northern wing by Edvard Ravnikar and the entrance hall by SADAR + VUGA Architects, 2009.
-
Football stadium in Maribor, Ofis Arhitekti, 2000
-
Rajhenburg Castle courtyard, 2012
-
The City Museum of Ljubljana facade in the background, with the Križanke church facade on the right, 2006
-
Headquarters of the Institute for the Protection of Cultural Heritage of Slovenia, Celje Regional Office, founded in 1961 in Celje
-
Guided tour of the Ferantov Garden Residential complex in Ljubljana, designed by architect Edvard Ravnokar, Open House Slovenia Festival 2023.
-
Guided tour of Cankarjev dom, the largest cultural and congress centre in Slovenia, Open House Slovenia Festival 2023. Author: Špela Koščak
-
Indoors view of the Cukrarna Gallery
-
Guided tour of the Museum of Modern Art Ljubljana, organised by Open House Slovenia Festival, Ljubljana 2023.
-
The building of today's Nova Gorica railway station, a postcard from the early 1920s. (Photo from the regional library portal Kamra.si.)
-
Documentation of winner suggestion for Franfurt Bookfair 2023 Slovenian pavilion created by Urška and Jure Sadar and Martin Smrekar
-
Štenova kajža, Grm, 1950. From the collection of Slovenian Ethnographic Museum
-
In the summer of 2022, Kajža hosted a design-architecture workshop at the homestead Pr' Lenart in Belem on the theme of transforming the old hayrack into a multifunctional community space.
-
Slovenia – Guest of Honour Country at the Frankfurt Book Fair 2023 Book viewing Photo Klemen Ilovar
-
Slovenian pavilion, designed by Studio Sadar, Studio Kruh, AA, Eva Petrič (ceiling instalation)
-
Exterior of Pivka House of Culture.
-
Entrance to the Pivka House of Culture.
-
Façade of the Old Power Station. Author: Nada Žgank
-
Opening of the exhibition A Letter to the Future at the former MTT textile factory in Maribor, 8th EKO 2021.
-
Old Power Station at night. Author: Nada Žgank
-
Slovenian Cinematheque, the main festival venue. Author: Žiga Gorišek
-
Guided tour of the newly renovated apartments on Tromostovje in Ljubljana, organised by Open House Slovenia Festival. Author: Mateja Jordović Potočnik
-
A visit to the construction site of the new production space in Ljubljana, Center Rog. Author: Pia Kreže
-
Guided tour of the TR3 high-rise and Trg republike (Republic Square) in Ljubljana, Open House Slovenia Festival 2023. Author: Špela Koščak
-
Guided tour of the Podmark Villa in Šempeter pri Gorici, organised by Open House Slovenia Festival 2023. Author: Miran Kambič
-
A visit to the construction site of the new production space in Ljubljana, Center Rog. Author: Alberto Rodriguez Arias
-
Slovenian Computer History Museum's event space, Ljubljana.
-
The building of the Slovenian Computer History Museum, Ljubljana.
-
Exhibition at the Slovenian Computer History Museum, Ljubljana.
-
International music festival Arsana at Ptuj Castle, Ptuj 2022. Author: Marko Pigac
-
View of the Slovene National Theatre Maribor, the main venue of the 58th Maribor Theatre Festival, 2023. Author: Boštjan Lah
-
View of the Maribor Public Library, The Central Library, located in the Shopping Center City Maribor, 2023.
-
Stage on the raft, Sajeta festival 2015. Author: Iztok Zupan
-
Construction site of Center Rotovž, where the new Central Library is being built, Maribor 2023.
-
The Pobrežje Library, Maribor Public Library unit, 2022.
-
The Selnica library, one of the Maribor Public Library units.
-
Kino Pivka hall at the Krpanov dom Pivka
-
Exterior of Ravne Gallery, Museum of Modern and Contemporary Art Koroška, 2020.
-
The grand staircase at the National Gallery of Slovenia in Ljubljana. The palace was built during the late 19th century along the plans of František E. Škabrout.
-
The independent club Klub Baza (established in 2015) is stationed at the former premises of the Student Club Ajdovščina.
-
The front door of the independent club Klub Baza, a venue which hosts various cultural activities.
-
A closer look at the entrance of the independent club Klub Baza.
-
This cultural centre, established in 2016 in Nova Gorica, is stationed at the building of the former border-crossing between the two cities - Italian Gorizia and Slovenian Nova Gorica.
-
Stationed at the building of the former border-crossing between the two cities, it is a meeting point for open-minded people who care for the urban culture of both cities.
-
The former border-crossing customs building, now culture centre, kindly letting you know what country you're in, in case you get lost.
-
Some welcome artistical adornments on the once-bleak border-crossing customs building, now reformed into a culture centre.
-
A closer look at the happy woodland creatures that welcome all would-be visitors to the culture centre in Nova Gorica.
-
Carinarnica, the welcome product of recycling a former border-crossing customs building into a culture centre, in Nova Gorica.
-
The former headquarters of the Apostolic Administrator for the Slovenian part of the Archdiocese of Gorica, now a place of ecclesiastical art and a centre of spirituality.
-
The pious steps of the Franciscan Monastery Kostanjevica in Nova Gorica.
-
The entrance of the Franciscan Monastery Kostanjevica in Nova Gorica.
-
The Franciscan Monastery in Nova Gorica, with at least 3 outstanding cultural and spiritual experiences.
-
A nice look at the two-storey Renaissance-style castle, located in Nova Gorica.
-
The castle was severely damaged in both world wars but was renovated after each.
-
Another good look at the two-storey Renaissance-style castle, located in Nova Gorica.
-
One of the historical remnants, around the Kromberk Castle.
-
One of the historical remnants, around the Kromberk Castle.
-
One of the defiant walls of Kromberk Castle, withstanding the tribulations of time.
-
An amphitheater at Kromberk Castle.
-
Another good look at the two-storey Renaissance-style castle, located in Nova Gorica.
-
The terraced garden around the manor has been partly reconstructed in accordance with the data about its state in the 18th century.
-
The reconstructed Baroque park and a fountain from 1774 in its centre.
-
The front door of the 13th-century fortress, now accommodating the Goriška Museum with its rich collection of paintings, cultural and historical artefacts, and rooms for occasional exhibitions and symposia.
-
The entrance to Beletrina Bookshop.
-
Museum of Modern Art is the central museum and gallery of the Slovenian art works from the 20th and 21st centuries.
-
Gorica Cultural Centre has been operating since 1981 and today is an important center and crossroads of Slovenian, Italian and Friulian culture in the Goriška region.
-
The cultural center has a central theater hall, a conference hall, three gyms and an art gallery. In addition, it offers a wide selection of modern services.
-
Mosaic, at the entrance to the Gorica Cultural Centre.
-
A closer look at the mosaic, at the entrance to the Gorica Cultural Centre.
-
Entrance to Gorica Cultural Centre, an important center and crossroads of Slovenian, Italian and Friulian culture in the Goriška region.
-
Museum of Modern Art, Ljubljana, 2021.
-
The main entrance to Museum of Modern Art.
-
A closer look at the main entrance to Museum of Modern Art.
-
Museum of Modern Art, Ljubljana, 2021.
-
Museum of Modern Art, Ljubljana, 2021.
-
The Ljubljana mosque is an Islamic religious and cultural centre complex in the Bežigrad district of Ljubljana.
-
The Ljubljana mosque is an Islamic religious and cultural centre complex in the Bežigrad district of Ljubljana.
-
Islamic Religious and Cultural Centre, Bevk Perović Arhitekti, 2021.
-
Islamic Religious and Cultural Centre, Bevk Perović Arhitekti, 2021.
-
Islamic Religious and Cultural Centre, Bevk Perović Arhitekti, 2021.
-
Islamic Religious and Cultural Centre, Bevk Perović Arhitekti, 2021.
-
Islamic Religious and Cultural Centre, Bevk Perović Arhitekti, 2021.
-
Islamic Religious and Cultural Centre, Bevk Perović Arhitekti, 2021.
-
Islamic Religious and Cultural Centre, Bevk Perović Arhitekti, 2021.
-
Islamic Religious and Cultural Centre, Bevk Perović Arhitekti, 2021.
-
Islamic Religious and Cultural Centre, Bevk Perović Arhitekti, 2021.
-
Islamic Religious and Cultural Centre, Bevk Perović Arhitekti, 2021.
-
RogLab is a cultural facility, serving as an interdisciplinary space for education, research and production.
-
Closer look at the entrance to RogLab.
-
The Slovene Ethnographic Museum is a sizable musuem with creative exhibits exploring Slovenian history, along with other cultures.
-
Founded in 2017 by Piera Ravnikar, R-Space is a contemporary art gallery located in the very centre of Ljubljana.
-
In 2011, the Aksioma Institute for Contemporary Art opened up the Aksioma Project Space, a venue dedicated to exhibitions and presentations of either its own art productions or those of various internationally acclaimed intermedia art projects.
-
DobraVaga is an exhibition and project space, a sales gallery and an open studio of various art languages, styles and contents.
-
Osmo/za is a collaborative space at the 8th floor of the Avtotehna 1960s skyscraper building at Slovenska 54 in the very centre of Ljubljana.
-
Osmo/za is a collaborative space at the 8th floor of the Avtotehna 1960s skyscraper building at Slovenska 54 in the very centre of Ljubljana.
-
Osmo/za is a collaborative space at the 8th floor of the Avtotehna 1960s skyscraper building at Slovenska 54 in the very centre of Ljubljana.
-
The Old Power Station is one of the most important contemporary performing arts venues in Ljubljana.
-
The Old Power Station, Ljubljana, 2021.
-
The Old Power Station is one of the most important contemporary performing arts venues in Ljubljana.
-
The Old Power Station, Ljubljana, 2021.
-
The Old Power Station, Ljubljana, 2021.
-
Founded in Ljubljana in 2019, the Ulay Foundation Project Space is devoted to preserving and extending the legacy of Frank Uwe Laysiepen (1943–2020), known professionally as Ulay.
-
Ferrari garden, together with a part of the Ferrari villa that is still preserved.
-
The Ferrari Garden, built by Max Fabiani during both wars as part of the Ferrari villa.
-
The Tower of Kobdilj, with Fabiani's apiary. The tower was once part of the Ferrari villa (dining room, terrace).
-
Panorama of Štanjel
-
The Žužemberk Castle, nestled in the heart of the town of Žužemberk.
-
Vodnik Homestead, 2006
-
Viba Film Studio, 2003
-
A modernist building of the Velenje Regional Gallery, designed in 1971 by Adi Miklavc, thoroughly renovated in 2015
-
The Velenje Library interior, 2012
-
Velenje Library, 2009
-
Velenje Library, 2006
-
University of Nova Gorica, main bulidnig, 2015.
-
Lanthieri Mansion in Vipava - home of the School of Environmental Sciences, the School for Viticulture and Enology, the School of engineering and Management and the Wine Research Centre, 2019.
-
Turjak castle
-
Trenta Lodge TNP Information Centre and Museum, part of the Goriška Museum, introducing additional artefacts relating to the natural and cultural world of the Triglav National Park, 2014
-
Trenta Lodge TNP Information Centre and Museum, part of the Goriška Museum, introducing additional artefacts relating to the natural and cultural world of the Triglav National Park, 2014
-
Interior of the Švicarija Art Centre, located in Tivoli Park in Ljubljana, 2017.
-
The Švicarija Art Centre, a former hotel located in Tivoli Park in Ljubljana, reopened its doors in 2017 as a new residency and exhibition venue for visual arts.
-
The renovated exterior of Švicarija Art Centre, a new residency and exhibition venue for visual arts reopened in 2017.
-
The renovated interior of the Švicarija Art Centre, a former hotel from the early 20th century, renovation led by Arrea Architecture, 2017.
-
The reading room in the attics of the Celje Central Library. STVAR architects, 2011
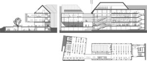
-
Plan of the Celje Central Library by the Stvar Architects, 2011
-
The building of the new Celje Central Library seen from the banks of the Savinja River in Celje. STVAR architects, 2011
-
The Celje Central Library exterior, STVAR architects, 2011
-
The Celje Central Library. STVAR architects, 2011
-
The cafe in the Celje Central Library, designed by the STVAR architects, 2011
-
Stolp Photogallery, 2009
-
The Snežnik Castle, documented in 1269 when it was owned by the patriarchs of Aquileia,
-
The Slovenska Bistrica Castle stands in the old centre of Slovenska Bistrica town. It houses a museum with several collections and serves as the Slovenska Bistrica cultural centre.
-
Slovenian Theatre Institute entrance at Mestni trg 17 in Ljubljana old town, 2015
-
Slovenian Alpine Museum
-
Slovene National Theatre Opera and Ballet Ljubljana at night, 2011
-
Slovene National Theatre (SNG) Ljubljana - Drama
-
Slovene National Theatre Drama Ljubljana, main entrance, 2013
-
Slovene National Theatre Drama Ljubljana, main entrance, 2013
-
Škofja Loka, winter 2012
-
The Sergej Mašera Maritime Museum located in the neo-classicist Gabrielli-De Castro Palace in Piran/Pirano
-
Predjama Castle, 2007
-
Predjama Castle, 2006
-
Predjama Castle, 2006
-
Predjama Castle
-
Predjama Castle, 2006
-
Pleterje Charterhouse Monastery
-
An airial view of the Nordic Center Planica, designed by Studio AKKA, A.biro and Stvar Architects, 2015.
-
A newly-constructed pavilion opened in 2016 houses also a Planica Museum. In the background, on the left side the 'Gorišek Brothers Ski Flying Hill' built in 1969, while the 'Bloudek Giant' is seen on the right-hand side. The latter was finished in 1934, when it also claimed its first world record.
-
The circular shaped Nova Gorica City Gallery, a high-profile contemporary arts space located in the premises of the Slovene National Theatre Nova Gorica, 2015
-
The main entrance to the Nova Gorica Arts Centre, located in the centre of the town, 2016
-
National Museum of Slovenia, Ljubljana
-
An exterior of the National Museum of Contemporary History located in the Baroque Cekin Mansion in Tivoli Park in Ljubljana, 2014.
-
Cekin Mansion, a 18th century building based on plans by the Viennese Baroque architect Fischer von Erlach, located in Tivoli Park in Ljubljana. Today the mansion houses the National Museum of Contemporary History, 2014.
-
A Baroque Cekin Mansion in park Tivoli in Ljubljana, since 1951 housing the National Museum of Contemporary History, 2014.
-
The National Museum of Contemporary History located at the Cekin Mansion in Park Tivoli, Ljubljana, since 1952. As captured in 2013.
-
The Cekin Mansion at night. National Museum of Contemporary History, 2012.
-
A historical building Narodni dom built at the end of 19th Century, in which the National Gallery of Slovenia is housed.
-
A detail of the facade of the historical building Narodni dom in Ljubljana, built at the end of 19th Century. Today the National Gallery of Slovenia.
-
National Gallery of Slovenia 2013 entrance hall 02
-
National Gallery of Slovenia south view with the Ravnikar's northern wing (on the right) and the glass entrance hall by SADAR + VUGA Architects
-
National Gallery of Slovenia is housed in a historical building (Narodni dom built at the end of 19th Century) which was later on renovated and enlarged. Ljubljana, 2006.
-
National Gallery of Slovenia 2005 entrance hall Photo Janko Dermastja
-
Narodni dom (National House) building by František Škabrout, built in Ljubljana 1894–1896. In 1927 the National Gallery of Slovenia rented some rooms in the building that housed also sport and leisure activities. Postcard, 1910.
-
National and University Library by Jože Plečnik, 2010
-
Façade of the National and University Library by Jože Plečnik, 2008
-
Facade of the National and University Library by Jože Plečnik, 2005
-
Narodni dom Maribor in winter 2010
-
Narodni dom Maribor rooftop
-
Narodni dom Maribor exterior
-
Narodni dom Maribor exterior
-
Narodni dom Maribor exterior
-
Museum of Contemporary Art Metelkova (MSUM) located in the new museum quarter in Ljubljana, 2014
-
The building of the former barracks at the museum quarter before renovation, the future home of the Museum of Contemporary Art Metelkova, 2009
-
A view of the the Metlika Commandery, a one-time residence of the knights of the Teutonic Order. Built in the early 14th century, it is now an old people's home.
-
The Metlika Commandery, a one-time residence of the knights of the Teutonic Order, now an old people's home. It was built in the early 14th century.
-
The church on Bled Island was built in its current form near the end of the 17th century. While it served as a pilgrim's destination for several centuries, nowadays it mostly serves as a very popular tourist spot.
-
Museum of Modern Art, Ljubljana
-
Moderna galerija (MG), 2010
-
City Bookstore at Gosposka Street in Maribor, 2009
-
The Metelkova mesto Autonomous Cultural Zone joins many urban cultural activities and is a stop on numerous tours. Photo: Žiga Kranjec, 2008
-
Metelkova mesto Autonomous Cultural Zone
-
Memorial Room at Topolšica, exterior
-
Maribor Puppet Theatre, 2010
-
The back entrance of the Gustav Schermbaum's neo-renaissance villa, now housing the Maribor National Liberation Museum
-
Loka Castle and its surroundings, winter 2012
-
The view of the Loka Castle located in Škofja Loka. Since 1959 the castle serves as the main venue for the archaeological, ethnological, art history, and other collections of the Loka Museum .
-
Loka Castle at night, 2007
-
Loka Castle, Loka Museum, Škofja Loka) in winter 2012
-
Ljubljana Puppet Theatre, 2012. At every full hour puppet of Martin Krpan, famous fictional hero in Slovenian literature, and his mare step out of interesting roof turret with a clock, which was put there in 1987.
-
Ljubljana Puppet Theatre, 2012
-
Ljubljana Castle and Slovene Philharmonic, shot from the recently renewed Congress Square [Kongresni trg], 2012
-
A view of Ljubljana Castle before the storm, 2012
-
Ljubljana Castle courtyard, venue for performing arts events, exhibition projects and film screenings i.e. Kinodvor Cinema's Film under the Stars during the summertime. Viewing tower in the background, 2012
-
A beautiful aerial view of Ljubljana Castle and the Old Town Centre, 2008
-
Lendava Castle, 2009
-
Lavrič Library, Ajdovščina, Vipava branch, 2013
-
Laško Public Library exterior, 2006
-
KUD France Prešeren
-
KUD France Prešeren Arts and Culture Association at night, 2009
-
The interior of the Kranj City Library, 2013
-
The entrance of the Kranj City Library, 2013
-
Kosovel Library, Sežana
-
A panorama photo of the Kosovel Culture House Sežana, 2014
-
The main entrance to the Kosovel Culture House Sežana, a regional cultural centre, 2014
-
Kodeljevo Castle, 2012
-
Kodeljevo Castle, 2012
-
The back entrance to Kino Šiška Centre for Urban Culture. Back when Kino Šiška was a cinema, this was where you left the auditorium after the movie ended, 2017.
-
The main entrance to Kino Šiška, 2017
-
Facade of the Kamnik Public Library, 2008
-
Kambič Gallery, 2012
-
Façade of the Josip Vošnjak Library, Slovenska Bistrica, 2010
-
Facade of the old Cankar's Library Vrhnika, 2011
-
The Grm Castle, built in 1586 by Krištof Mordax, combined its residential function with that of defence against the Turkish invaders; it was rebuilt in 1636.
-
The Granary at Remšak, Šmiklavž 32, Institute for the Protection of Cultural Heritage of Slovenia, Celje Regional Office
-
Antonijev rov, the Idrija Mine Museum entrance and birth-house of Slovene engineer Stanko Bloudek
-
Idrija Mine Museum, 2011
-
Hall E, popularly called Jurček ("porcini"), was built in five months of the year 1960 (architect Marko Šlajmer); the building is included into the Register of Slovene cultural heritage
-
Panoramic view of the France Bevk Public Library Nova Gorica, conceived by Vojteh Ravnikar (1998–2000).
-
France Bevk Public Library Nova Gorica exterior, conceived by the architect Vojteh Ravnikar (1998–2000).
-
The building of the Miners' Theatre in Idrija was built in the 1770s, it is considered the oldest theatre building in Slovenia. Its construction was financed from voluntary contributions by the mercury mine employees. In the 20th C. it was turned into a cinema hall, Film Theatre Idrija.
-
The Embassy of the Republic of Slovenia in Paris, located in the 16th arrondissement (Passy) that stretches south-west from the Arc the Triomphe to the Bois de Boulogne, Paris.
-
The building design is the work of four architectural bureaus which established the Architectural Union for Vitanje (AZZV), the fascinating building of 2500 m² is inspired by Herman Potočnik's plan for the first geostationary space station from 1928. Vitanje, 2012
-
One of the study rooms at the Cultural Centre of European Space Technologies (KSEVT), Vitanje, 2012
-
The roof of the Cultural Centre of European Space Technologies (KSEVT), Vitanje, 2012
-
View from the upper floor of the Cultural Centre of European Space Technologies (KSEVT), Vitanje, 2012
-
The upper floor of the Cultural Centre of European Space Technologies (KSEVT), Vitanje, 2012
-
The interior detail of the Cultural Centre of European Space Technologies (KSEVT), Vitanje, 2012
-
View from the upper floor of the building in Vitanje.
-
The upper floor of the Cultural Centre of European Space Technologies (KSEVT), Vitanje, 2012
-
The building in Vitanje, initially the venue of the Cultural Centre of European Space Technologies (KSEVT) programme. Vitanje, 2012
-
Cultural Centre of European Space Technologies (KSEVT), a space for the synthesis of art and science focused on the post-gravity art, Vitanje, 2012. Since 2017 the programme is run by Herman Potočnik Noordung Space Center.
-
Cultural Centre of European Space Technologies (KSEVT), a space for the synthesis of art and science focused on the post-gravity art, Vitanje, 2012
-
The Cultural Centre of European Space Technologies (KSEVT) was founded by Miha Turšič, Dragan Živadinov (Delak Institute), Municipality of Vitanje, Delak Institute and Planit Institute. A space for the synthesis of art and science focused on the post-gravity art was opened in Vitanje in 2012.
-
Cultural Centre of European Space Technologies (KSEVT), described by its founders also as "a living room of Vitanje inhabitants", 2012
-
The Cultural Centre of European Space Technologies (KSEVT) building design is the work of four architectural bureaus which established the Architectural Union for Vitanje (AZZV): Bevk Perović Arhitekti, Dekleva Gregorič Arhitekti, Ofis Arhitekti, and SADAR + VUGA Architects.
-
The so-called Old Counts' Mansion, one of the mansions that host the Celje Regional Museum.
-
Celje Central Library, view from the Savinja river bank, 2011
-
Cankarjev dom, Cultural and Congress Centre with a monument to Ivan Cankar (by Slavko Tihec) on the main platform, 2013. The centre was designed by Slovenian architect Edvard Ravnikar in 1977, and constructed in the early 1980s.
-
Brežice Library, 2007
-
The baroque trompe-l'œil fresque above staircase in the Brežice Castle
-
Facade of the old Anton Tomaž Linhart Library Radovljica, 2007
-
The City Museum of Ljubljana located in the very centre of Ljubljana, 2013
-
Startled Satyr, a student work by Ivan Zajec, 1894, awarded with Fueger Medal, today set up in the entrance hall of the National Gallery of Slovenia. Zajec was commissioned to make a sculpture of a poet France Prešeren for the central square in Ljubljana, unveiled in 1905.
-
The fountain sculpture commissioned by the city authorities from Francesco Robba in 1743, was inspired by the Bernini's Piazza Navona fountain and conceived as a Fountain of the Three Rivers of Carniola. In 2006, the original fountain was renovated and moved from the Town Square into the National Gallery of Slovenia.
-
National Gallery of Slovenia 2009 Robba fountain Photo Janko Dermastja (2)
-
Celjski dom